—Production analysis using 8oz / 12oz / 16oz as examples
In paper cup production, size is not a simple numerical change.
From 8oz to 12oz, and then to 16oz, each size change involves adjustments to the paper cup machine structure, molds, and some process parameters.
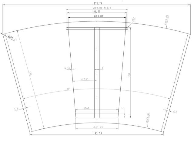
I. Paper Cup Molds: The Core Component
Different paper cup capacities require different unfolded dimensions, making the mold the most crucial element.
Main components include:
Cup Body Mold: For cup bodies of varying heights and tapers.
Bottom Mold: The bottom diameter increases with capacity.
Top Curling Mold: The top curling diameter must perfectly match the cup rim size.
Conclusion: 8oz, 12oz, and 16oz cups cannot share the same mold. Different sizes can only be produced by adding a machine or changing the mold itself.
II. Adjustment of Paper Size and Weight
Changes in paper cup size mean changes in the types and weight of items the cup can hold, necessitating adjustments to the paper configuration.
Paper Fan
8oz Common Configuration: 190–210gsm

12oz Common Configuration: 210–230gsm

16oz Common Configuration: 230–260gsm

Simultaneously, the unfolded dimensions (arc length, height) of the paper fan must match the mold; otherwise, the following problems may occur:
Insecure sealing
Curled edges and deformation
Incorrect cup shape
III. Fine-tuning of Heating and Sealing Parameters
Although the basic structure of the paper cup machine remains unchanged, the
process parameters need to be adjusted appropriately when switching between different capacities.
This mainly focuses on:
Cup body longitudinal sealing heating
Cup bottom heating
Bottom knurling pressure
The reasons are:
Larger capacity cups → Larger contact area
Increased cup height → Changes in heat conduction path
Therefore, in actual production, it is usually necessary to:
Readjust the heating temperature
Adjust the sealing time or pressure
To ensure a firm seal and prevent leakage.
IV. Impact of Forming Cycle Time and Operational Stability
In paper cup production, regardless of whether 8oz, 12oz, or 16oz cups are being produced, the machine's operating speed is not a fixed value but is directly related to the
size, weight, and structure of the paper cup. These changes necessitate corresponding adjustments to the operating cycle time.
As the paper cup size increases, so does its motion inertia.
Increased capacity means:
Taller cup body
Larger diameter of the rim and base
Increased overall weight of a single paper cup
During the paper cup machine's operation, the cup undergoes several actions:
Fan-forming the cup body
Mold rotation
Bottom folding and preheating
Bottom knurling and top edge curling
When the paper cup size increases:
Inertia during movement is greater
Stability requirements are higher during indexing and pauses
If the operating speed for smaller cups is maintained, the following are likely to occur:
Turntable wobbling
Positioning misalignment
Increased machine wear
V. Is it necessary to replace the entire machine?
This is one of the most frequently asked questions by customers.
A single paper cup machine can produce multiple sizes by changing the molds.
Within the design specifications of the paper cup machine:
8oz, 12oz, and 16oz paper cups do not require a separate machine replacement for each size. By changing the mold for the corresponding capacity and using matching paper fans and cup bottom paper, the same paper cup machine can
sequentially produce paper cups of different capacities.
Production by changing molds means that the production of different sizes is carried out sequentially.
When changing sizes by changing molds:
8oz, 12oz, and 16oz can only be produced in the production schedule.
Each mold change requires machine downtime for mold replacement and adjustments.
Therefore, the mold-changing method is more suitable for:
Production of each size at different times
Or situations where order batches are relatively concentrated.
In some cases, replacing the entire machine is a reasonable and common choice.
When the following situations occur in production:
Orders for multiple capacity specifications are received simultaneously for a long period of time
Different specifications require continuous and stable supply
We want to reduce downtime caused by frequent mold changes
In these cases, configuring separate paper cup machines for different capacities is a very common and reasonable practice.